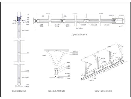
可伦电动自闭双玻活动隔断CAG70系统
(配置70型常规多向路轨或直行单向路轨及滑轮)
隔断厚度(mm):70 隔断高度(mm):≤3000
隔断宽度(mm):500~1230 隔音系数(db):40
中间镂空可用材质:百叶 路轨载荷(KG/M2):400
隔板重量(KG/M2):33 顶底伸缩空间(mm):25
基层面板:8mm厚钢化玻璃;
隔墙外观:
路轨及外框均采用6063-T6高硬度白色静电粉末喷涂
路轨及滑轮配置:
配置70型常规多向路轨或直行单向路轨及滑轮
移动隔断墙_酒店移动隔断墙_上海酒店移动隔断墙

